Proposal Across from St James Park Grows to 65 Storeys

By: Anthony Teles
Across the street from St James Park in Downtown Toronto, a fully reworked proposal is the latest in multiple submissions for redevelopment at 110 Adelaide Street East. A collaboration between Stafford Developments and Greybrook Realty Partners, the submission entails a 65-storey mixed-use building designed by Arcadis. Located on the north side of Adelaide Street East just west of Jarvis Street, it would integrate residential, retail, and office spaces, positioned northeast of the iconic St James Cathedral, and within walking distance of the future Moss Park station on Ontario Line 3.
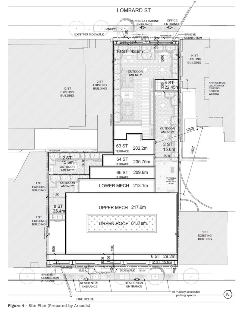
Addressed to 110 and112 Adelaide Street East and 85 Lombard Street, the site is approximately 1,306m² in area. It currently houses a 4-storey office building serving as the offices of SvN, extending across the full depth of the property with frontages on both Adelaide and Lombard Streets.

In February, 2020, an earlier Zoning By-law Amendment application was submitted by the former owner, 110 Adelaide Street East Inc. It outlined a plan for a 42-storey mixed-use building designed by SvN.

In response to feedback, a revised application scaled this down to 36 storeys. This submission was quickly followed by another adjustment to 39 storeys. In November, 2023, Greybrook and Stafford Homes acquired the site.

The latest Zoning By-law Amendment and Site Plan Control application proposes a tower reaching 217.6m, with an 8-storey podium along Adelaide Street and a distinctive 10-storey base building element that extends north to Lombard Street. It would house 600 residential units, with ground level featuring 137m² of retail space, directly accessible from Adelaide Street.
The Gross Floor Area (GFA) entails 36,370m² allocated for residential use, 400m² for retail, and 330m² for office uses, leading to a density of 28.41 FSI. Additionally, the building would be equipped with five elevators, for a ratio of one elevator per 120 units, which, could lead to longer wait times during peak hours.
The development is planned to include 1,220m² of outdoor and 480m² of indoor amenities, with the second floor also hosting a significant portion of the office space (297.2m²) and a 590m² indoor amenity area.

Reflecting the City of Toronto’s push towards transit-oriented development, no underground vehicular parking is proposed for this site. Instead, the plan includes ample bicycle parking, with spaces at grade and on mezzanine levels, totalling 540 long-term and 120 short-term spaces.
Queen and King stations on Yonge Line 1 are both within an approximate 8-minute walk, providing swift access to north-south transit routes. Additionally, the 504 King and 501 Queen streetcar routes are just a 3 to 4-minute walk away. For cyclists, Adelaide Street features a dedicated cycle track, paired with an opposite-direction track on Richmond Street, while access to both long-term and short-term bicycle parking is off Lombard Street.

Historically characterized by low- to mid-rise buildings, this neighbourhood, located to the east of the bustling Financial District is evolving in response to the diminishing availability of development sites closer to the city’s commercial heart. A block and a half east of the site, Celeste Condominiums is being built, set to rise to 39 storeys. To the west, The Saint and Alias are under construction, slated for 47 and 48 storeys, respectively. Northwards, the 52-storey 88 Queen is under construction, while closer by, 100 Lombard Street is proposed at 59 storeys.

Multiple nearby buildings planned or under construction also feature a design by Arcadis, including the 34-storey Queen Central, 40-storey 133 Queen East, and 59-storey 119-127 Church Street.
UrbanToronto will continue to follow progress on this development, but in the meantime, you can learn more about it from our Database files.